【不銹鋼美標球閥概述】
不銹鋼美標球閥的球體是浮動的,在介質壓力作用下,球體能產生一定的位移并緊壓在出口端的密封面上,保證出口端密封。
不銹鋼美標球閥的結構簡單,密封性好,但球體承受工作介質的載荷全部傳給了出口密封圈,因此要考慮密封圈材料能否經受得住球體介質的工作載荷,在受到較高壓力沖擊時,球體可能會發生偏移。這種結構,一般用于中低壓球閥。
【不銹鋼美標球閥性能規范】
| 壓力等級 |
公稱壓力(PN) |
磅級(Class) |
| 1.6 |
2.5 |
4.0 |
6.4 |
10.0 |
150 |
300 |
400 |
600 |
試驗壓力
|
殼體試驗
|
2.4 |
3.75 |
6.0 |
9.6 |
15.0 |
3.03 |
7.5 |
10.2 |
15.0 |
密封試驗
|
1.76 |
2.75 |
4.4 |
7.04 |
11.0 |
2.2 |
5.5 |
7.48 |
11.0 |
| 適用工況 |
適用介質 |
水、氣體、油品;硝酸、鹽酸類。 |
| 適用溫度 |
-39℃~≤150℃ |
適用規范
|
設計制造按 |
GB12237-89 |
API 6D |
JP17S-48 |
法蘭尺寸按
|
JB79-59、GB9113 、HG20592-07 |
ANSI B16.5 |
JIS B2212-2214 |
結構長度按
|
GB12221-89 |
ANSI B16.10 |
JIS B2002 |
檢驗試驗按
|
|
JB/T9092-99 |
API 598 |
【不銹鋼美標球閥主要零部件材料】
|
閥體 |
WCB |
CF8 |
CF8M |
CF3 |
CF3M |
|
球 |
2Cr13 |
304 |
316 |
304L |
316L |
|
閥桿 |
2Cr13 |
304 |
316 |
304L |
316L |
|
閥座 |
聚四氟乙烯 不銹鋼/聚四氟乙烯 對位聚苯 |
|
|
|
|
|
墊片 |
聚四氟乙烯 不銹鋼/柔性石墨 齒形墊片 |
|
|
|
|
|
閥桿座 |
聚四氟乙烯 不銹鋼/柔性石墨 |
|
|
|
|
|
填料 |
聚四氟乙烯 增強柔性石墨 |
|
|
|
|
|
填料壓蓋 |
WCB |
304 |
316 |
304L |
316L |
|
溫度 |
≦150 |
|
|
|
|
|
介質 |
水、油品、蒸汽、醋酸類、硝酸類 |
|
|
|
|
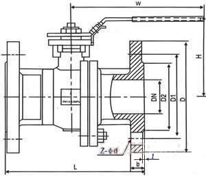
【不銹鋼美標球閥結構圖】


【不銹鋼美標球閥主要連接尺寸】
|
DN |
150Lb(PR) 凸面法蘭RF |
|
mm |
in |
L |
D |
D1 |
D2 |
b |
n-Φd |
H |
D0 |
|
15 |
1/2 |
108 |
89 |
60.5 |
35 |
10 |
4-Φ16 |
59 |
130 |
|
20 |
3/4 |
117 |
98 |
69.9 |
43 |
10.5 |
4-Φ16 |
63 |
130 |
|
25 |
1 |
127 |
108 |
79.2 |
51 |
11.5 |
4-Φ16 |
75 |
160 |
|
32 |
1 1/4 |
140 |
117 |
89 |
63 |
13 |
4-Φ16 |
95 |
160 |
|
40 |
1 1/2 |
165 |
127 |
98.6 |
73 |
14.5 |
4-Φ16 |
107 |
160 |
|
50 |
2 |
178 |
152 |
120.7 |
92 |
16 |
4-Φ19 |
155 |
200 |
|
65 |
2 1/2 |
190 |
178 |
139.7 |
105 |
18 |
4-Φ19 |
164 |
200 |
|
80 |
3 |
203 |
190 |
152.4 |
127 |
19.5 |
4-Φ19 |
182 |
200 |
|
100 |
4 |
229 |
229 |
190.5 |
157 |
24 |
8-Φ19 |
226 |
300 |
|
125 |
5 |
356 |
254 |
216 |
186 |
24 |
8-Φ22.5 |
230 |
300 |
|
150 |
6 |
394 |
279 |
241.3 |
216 |
25.4 |
8-Φ22.5 |
250 |
500 |
|
200 |
8 |
457 |
343 |
298.5 |
270 |
28.4 |
8-Φ22.5 |
280 |
500 |
|
250 |
10 |
533 |
406 |
362 |
324 |
30.2 |
12-Φ25.4 |
320 |
600 |
【不銹鋼美標球閥操作和使用】
1)操作前須確認管路和閥已被沖洗過。
2)閥的操作按執行機構輸入信號大小帶動閥桿旋轉完成:正向旋轉1/4圈(90°)時,閥關斷。反向旋轉1/4圈(90°)時,閥開啟。
3)當執行機構方向指示箭頭與管線平行時,閥門為開啟狀態;指示箭頭與管線垂直時,閥門為關閉狀態。
4) 安裝在保溫管道上的各類手動球閥,手柄均不得向下。
5) 安裝位置、高度、進出口方向必須符合設計要求,連接應牢固緊密。
訂貨須知:
一、①不銹鋼美標球閥產品名稱與型號②不銹鋼美標球閥口徑③不銹鋼美標球閥是否帶附件以便我們的為您正確選型。
二、若已經由設計單位選定正鋼閥門不銹鋼美標球閥型號,請按不銹鋼美標球閥型號直接向我司銷售部訂購。
三、當使用的場合非常重要或環境比較復雜時,請您盡量提供設計圖紙和詳細參數,由我們的正鋼閥門專家為您審核把關。