【不銹鋼兩片式球閥概述】
1.公稱壓力:1.6-6.4MPa
2.適用穩(wěn)定范圍:-20~232℃~350℃
3.適用介質:水、油、氣及某些腐蝕性液體(W。O。G)
4.螺紋類型:G。NPT。BSPT。BSP。DI259/2999
【不銹鋼兩片式球閥使用范圍】
可分別適用于水、蒸汽、油品、硝酸、醋酸、氨鹽水、中和水等多種介質。
閥座采用彈性密封結構,密封可靠,啟閉輕松。
閥桿采用有倒密封的下裝式結構,閥腔異常升壓時,閥桿不會被沖擊。
可設置90°開關定位機構,根據需要加鎖以防止誤操作。
適用于PN1.0~4.0MPa,工作溫度-29~180℃(密封圈為增強聚四氟乙烯)或-29~300℃(
密封圈為對位聚苯)的各種管路上,用于截斷或接通管路中的介質.
【不銹鋼兩片式球閥內部材料】
| 零件名稱 |
材質 |
| 密封圈 |
聚四氟乙烯PTFE |
| 球體 |
不銹鋼SS316 |
| 密封墊 |
聚四氟乙烯PTFE |
| 閥蓋 |
不銹鋼SS316 |
| 閥體 |
不銹鋼CF8M |
| 閥桿 |
不銹鋼SS316 |
| 止推墊圈 |
聚四氟乙烯PTFE |
| 填料 |
聚四氟乙烯PTFE |
| 填料壓蓋螺母 |
不銹鋼SS304 |
| 墊圈 |
不銹鋼SS304 |
| 閥桿螺母 |
不銹鋼SS304 |
| 手柄套 |
塑料PLASTIC |
| 手柄 |
不銹鋼SS304 |
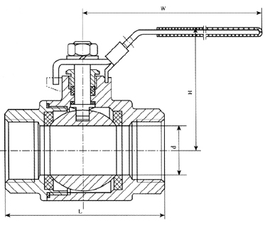
【不銹鋼兩片式球閥結構圖】

【不銹鋼兩片式球閥主要連接尺寸】
| SIZE |
1/4" |
3/8" |
1/2" |
3/4" |
1" |
1-1/4" |
1-1/2" |
2" |
2-1/2" |
3" |
4" |
| D |
11.6 |
12.7 |
15 |
20 |
25 |
32 |
38 |
50 |
65 |
80 |
100 |
| L |
55 |
55 |
65 |
75 |
88 |
102 |
110 |
125 |
162 |
189 |
260 |
| H |
50 |
50 |
60 |
64 |
71 |
78 |
86 |
95 |
130 |
148 |
180 |
| E |
100 |
100 |
130 |
130 |
165 |
165 |
190 |
190 |
250 |
250 |
280 |
【不銹鋼兩片式球閥產品特點】
1. 流體阻力小,其阻力系數與同長度的管段相等。
2. 結構簡單、體積小、重量輕。
3. 緊密可靠,目前球閥的密封面材料廣泛使用塑料、密封性好,在真空系統(tǒng)中也已廣泛使用。
4. 操作方便,開閉迅速,從全開到全關只要旋轉90°,便于遠距離的控制。
5. 維修方便,球閥結構簡單,密封圈一般都是活動的,拆卸更換都比較方便。
6. 在全開或全閉時,球體和閥座的密封面與介質隔離,介質通過時,不會引起閥門密封面的侵蝕。
訂貨須知:
一、①不銹鋼兩片式球閥產品名稱與型號②不銹鋼兩片式球閥口徑③不銹鋼兩片式球閥是否帶附件以便我們的為您正確選型。
二、若已經由設計單位選定正鋼閥門不銹鋼兩片式球閥型號,請按不銹鋼兩片式球閥型號直接向我司銷售部訂購。
三、當使用的場合非常重要或環(huán)境比較復雜時,請您盡量提供設計圖紙和詳細參數,由我們的正鋼閥門專家為您審核把關。