【一體式高溫排污球閥使用范圍】
一體式高溫排污球閥是一種實用新型的專利產品,閥體設計全部采用國際流行的一體式結構比二瓣式球閥中部減少泄漏點。閥桿采用倒裝雙密封,完全避免泄漏。閥桿處密封填料,調整墊,均采用回彈性強,耐溫,耐磨,壓,耐腐蝕,自潤滑性能良好,無毒型高新復合材料。適用溫度可達350℃。適用介質:蒸汽、導熱油、氣體、水。
一體式高溫排污球閥可替代閘閥,排污閥,柱塞閥,截止閥使用,便于原管道閥門的更換安裝。我公司生產有多種結構長度的球閥,可滿足用戶的各種需求。
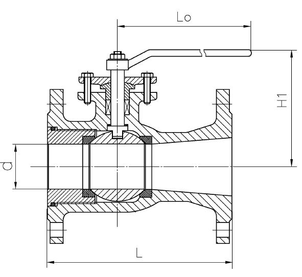
【一體式高溫排污球閥結構圖】

【一體式高溫排污球閥主要連接尺寸PN1.6MPa】
| DN |
L1 |
L2 |
L3 |
L4 |
D |
D1 |
D2 |
b |
Z—Φd |
H |
DO |
重量(公斤) |
| 15 |
130 |
130 |
92 |
|
95 |
65 |
45 |
16 |
4-14 |
105 |
150 |
2.8 |
| 20 |
150 |
130 |
105 |
|
105 |
75 |
55 |
110 |
5 |
| 25 |
160 |
140 |
110 |
160 |
115 |
85 |
65 |
120 |
160 |
6.5 |
| 32 |
180 |
165 |
125 |
|
135 |
100 |
78 |
18 |
4-18 |
140 |
180 |
8.5 |
| 40 |
200 |
180 |
135 |
230 |
145 |
110 |
85 |
155 |
250 |
12 |
| 50 |
230 |
200 |
155 |
250 |
160 |
125 |
100 |
20 |
175 |
300 |
17 |
| 65 |
290 |
220 |
170 |
- |
180 |
145 |
120 |
195 |
22 |
| 80 |
310 |
250 |
200 |
- |
195 |
160 |
135 |
22 |
8-18 |
225 |
320 |
30 |
| 100 |
350 |
280 |
230 |
- |
215 |
180 |
155 |
24 |
250 |
41 |
| 125 |
400 |
320 |
- |
- |
245 |
210 |
185 |
26 |
270 |
360 |
70 |
| 150 |
480 |
360 |
- |
- |
280 |
240 |
210 |
28 |
8-23 |
290 |
90 |
| 200 |
600 |
- |
- |
- |
335 |
295 |
265 |
30 |
12-23 |
350 |
450 |
120 |
| 250 |
730 |
- |
- |
- |
405 |
355 |
320 |
32 |
12-25 |
405 |
220 |
訂貨須知:
一、①一體式高溫排污球閥產品名稱與型號②一體式高溫排污球閥口徑③一體式高溫排污球閥是否帶附件以便我們的為您正確選型。
二、若已經由設計單位選定正鋼閥門一體式高溫排污球閥型號,請按一體式高溫排污球閥型號直接向我司銷售部訂購。
三、當使用的場合非常重要或環境比較復雜時,請您盡量提供設計圖紙和詳細參數,由我們的正鋼閥門專家為您審核把關。