一、氣動螺旋閘門產品概述
氣動螺旋閘門的用途是一種粉料、晶粒料、顆粒料及小塊物料的流量或輸送量的主要控制設備,廣泛使用在冶金、礦山、建材、糧食、化工等行業控制流量變化或迅速切斷。
二、氣動螺旋閘門的解剖圖


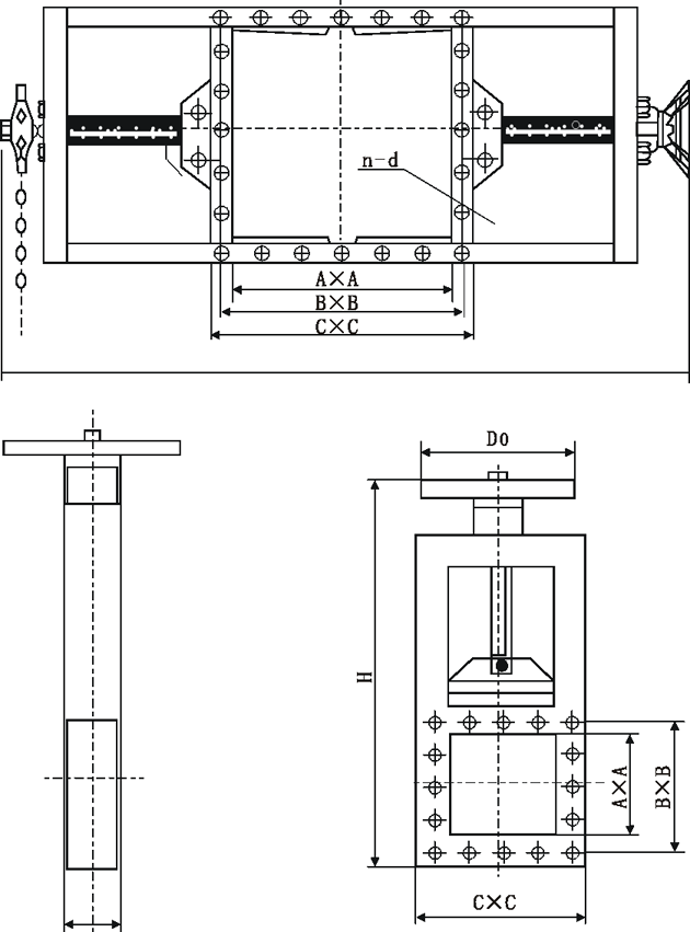
三、氣動螺旋閘門主要外形及連接尺寸
|
類別 |
A×A |
B×B |
C×C |
H |
L |
n-d |
重量 |
|
單向 |
200×200 |
256×256 |
296×296 |
820 |
100 |
8-Φ12 |
62 |
|
250×250 |
306×306 |
346×346 |
930 |
100 |
8-Φ14 |
70.5 |
|
300×300 |
356×356 |
396×396 |
1050 |
100 |
8-Φ14 |
81 |
|
400×400 |
456×456 |
496×496 |
1400 |
100 |
12-Φ14 |
114 |
|
450×450 |
510×510 |
556×556 |
1450 |
120 |
12-Φ18 |
130 |
|
500×500 |
560×560 |
606×606 |
1610 |
120 |
16-Φ18 |
147 |
|
雙向 |
600×600 |
660×660 |
706×706 |
1830 |
120 |
16-Φ18 |
169 |
|
700×700 |
770×770 |
820×820 |
2130 |
140 |
20-Φ18 |
236 |
|
800×800 |
870×870 |
920×920 |
2440 |
140 |
20-Φ18 |
303 |
|
900×900 |
974×974 |
1030×1030 |
2660 |
160 |
27-Φ23 |
424 |
|
1000×1000 |
1074×1074 |
1130×1130 |
2870 |
160 |
24-Φ23 |
636 |
|
說明 |
LMD-單向 |
I-手輪 |
距地面小于1.7米用手輪,大于1.7米用鏈輪 鏈條節數M=0.105X-113(X是絲桿中心離地面高度) |
|
LMS-雙向 |
II-鏈輪 |
注:1、本閥可按用戶要求設計制造;2、有關標準請參閱
訂貨須知:
一、①氣動螺旋閘門產品名稱與型號②氣動螺旋閘門口徑③氣動螺旋閘門是否帶附件以便我們的為您正確選型。
二、若已經由設計單位選定正鋼閥門氣動螺旋閘門型號,請按氣動螺旋閘門閥型號直接向我司銷售部訂購。
三、當使用的場合非常重要或環境比較復雜時,請您盡量提供設計圖紙和詳細參數,由我們的正鋼閥門專家為您審核把關。