【襯腐全啟式止回閥產品概述】
為確保管路介質絕對不與閥門殼體材料直接接觸,本產品中閥體,閥蓋,閥瓣等內件均設計成襯里部件;閥座采用整體式聚合物作密封材料,在較寬的溫度和壓力范圍內具有優良的密封性能;閥門選材廣泛,規格齊全,是石油勘探,石化,化工,原油和天然氣等輸送管道的理想用閥。閥桿設計成分段式由定位夾夾持連接而成,有利于閥門的開度控制和維修。
【襯腐全啟式止回閥產品標準】
公稱通徑:DN15~250mm,1/2”~10”
公稱壓力:PN1.0~4.0Mpa,Class150~300Lb
連接形式:法蘭連接
驅動裝置:手動,電動,氣動
適用介質:硫酸,氫氟酸,磷酸,氯氣,強堿,王水等具有強腐蝕性的介質。
【襯腐全啟式止回閥相關型號】
H44F4,H44F3,H44F46,H44PTFE
H44F4-16C,H44F3-16C,H44F46-16C,H44PTFE-16C
H44F4-25C,H44F3-25C,H44F46-25C,H44PTFE-25C
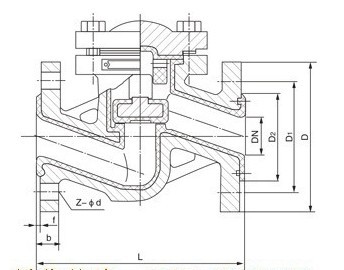
【襯腐全啟式止回閥產品結構圖】

【襯腐全啟式止回閥性能規范】
| 設計規范 |
結構長度 |
連接法蘭 |
實驗與檢驗 |
產品標識 |
供貨規范 |
GB/T12235 (GB/T12236) |
GB/T 12221 |
JB/T 78;JB/T 79 |
GB/T 13927 |
GB/T 12220 |
JB/T 7928 |
主要零部件材料:
| 序號 |
零件名稱 |
灰鑄鐵 |
鑄鋼 |
不銹耐酸鑄鋼 |
超低碳不銹耐酸鑄鋼 |
| Z |
C |
P |
R |
PL |
RL |
| 1 |
閥體 / 端蓋 |
HT250 |
WCB |
CF8 |
CF8M |
CF3 |
CF3M |
| 2 |
閥瓣 / 閥桿 |
35 |
1Cr13 |
1Cr18Ni9 |
1Cr18Ni12Mo2 Ti |
00Cr18Ni10 |
00Cr17Ni14Mo2 |
| 3 |
襯里 / 閥座 |
PTFE ( F 4 )、 PCTFE ( F 3 )、 FEP ( F 46 )、 PFA (可溶性 F 4 ) |
| 4 |
緊固螺母 |
35 |
1Cr17Ni2 |
1Cr18Ni9Ti |
| 5 |
螺 母 |
45 |
0Cr18Ni9 |
0Cr18Ni9 |
【襯腐全啟式止回閥主要連接尺寸】
| 公稱通徑 |
標 準 值 |
參 考 值 |
| DN(mm) |
NPS (inch) |
L |
D |
D 1 |
D 2 |
f |
b |
Z- φ d |
B |
H |
WT(Kg) |
| PN 0.6MPa |
| 15 |
1/2 |
130 |
80 |
55 |
40 |
2 |
12 |
4- φ 12 |
105 |
55 |
4 |
| 20 |
3/4 |
150 |
90 |
65 |
50 |
2 |
14 |
4- φ 12 |
115 |
58 |
5 |
| 25 |
1 |
160 |
100 |
75 |
60 |
2 |
14 |
4- φ 12 |
128 |
60 |
6 |
| 32 |
11/4 |
180 |
120 |
90 |
70 |
2 |
16 |
4- φ 14 |
145 |
75 |
7 |
| 40 |
11/2 |
200 |
130 |
100 |
80 |
3 |
16 |
4- φ 14 |
160 |
82 |
8 |
| 50 |
2 |
230 |
140 |
110 |
90 |
3 |
16 |
4- φ 14 |
178 |
95 |
10 |
| 65 |
2 1/2 |
290 |
160 |
130 |
110 |
3 |
16 |
4- φ 14 |
205 |
105 |
20 |
| 80 |
3 |
310 |
185 |
150 |
125 |
3 |
18 |
4- φ 18 |
230 |
120 |
25 |
| 100 |
4 |
350 |
205 |
170 |
145 |
3 |
18 |
4- φ 18 |
255 |
135 |
30 |
| 125 |
5 |
400 |
235 |
200 |
175 |
3 |
20 |
8- φ 18 |
305 |
158 |
50 |
| 150 |
6 |
480 |
260 |
225 |
200 |
3 |
20 |
8- φ 18 |
345 |
180 |
65 |
| 200 |
8 |
495 |
315 |
280 |
255 |
3 |
22 |
8- φ 18 |
415 |
215 |
137 |
| 250 |
10 |
622 |
370 |
335 |
310 |
3 |
24 |
12- φ 18 |
490 |
240 |
150 |
| 300 |
12 |
698 |
435 |
395 |
362 |
4 |
24 |
12- φ 23 |
540 |
265 |
185 |
| 350 |
14 |
787 |
485 |
445 |
412 |
4 |
26 |
12- φ 23 |
585 |
300 |
215 |
| 400 |
16 |
914 |
535 |
495 |
462 |
4 |
28 |
16- φ 23 |
635 |
360 |
244 |
| 450 |
18 |
978 |
590 |
550 |
518 |
4 |
28 |
16- φ 23 |
680 |
385 |
276 |
| 500 |
20 |
978 |
640 |
600 |
568 |
4 |
30 |
16- φ 23 |
740 |
415 |
315 |
| PN 1.0MPa |
| 15 |
1/2 |
130 |
95 |
65 |
45 |
2 |
14 |
4- φ 14 |
105 |
55 |
5 |
| 20 |
3/4 |
150 |
105 |
75 |
55 |
2 |
16 |
4- φ 14 |
115 |
58 |
7 |
| 25 |
1 |
160 |
115 |
85 |
65 |
2 |
16 |
4- φ 14 |
128 |
60 |
9 |
| 32 |
11/4 |
180 |
135 |
100 |
78 |
2 |
18 |
4- φ 18 |
145 |
75 |
11 |
| 40 |
11/2 |
200 |
145 |
110 |
85 |
3 |
18 |
4- φ 18 |
160 |
82 |
13.5 |
| 50 |
2 |
230 |
160 |
125 |
100 |
3 |
20 |
4- φ 18 |
178 |
95 |
18 |
| 65 |
21/2 |
290 |
180 |
145 |
120 |
3 |
20 |
4- φ 18 |
205 |
105 |
22 |
| 80 |
3 |
310 |
195 |
160 |
135 |
3 |
22 |
4- φ 18 |
230 |
120 |
28 |
| 100 |
4 |
350 |
215 |
180 |
155 |
3 |
22 |
8- φ 18 |
255 |
135 |
34 |
| 125 |
5 |
400 |
245 |
210 |
185 |
3 |
24 |
8- φ 18 |
305 |
158 |
58 |
| 150 |
6 |
480 |
280 |
240 |
210 |
3 |
24 |
8- φ 23 |
345 |
180 |
72 |
| 200 |
8 |
495 |
335 |
295 |
265 |
3 |
26 |
8- φ 23 |
415 |
215 |
150 |
| 250 |
10 |
622 |
390 |
350 |
320 |
3 |
28 |
12- φ 23 |
490 |
240 |
165 |
| 300 |
12 |
698 |
400 |
400 |
368 |
4 |
28 |
12- φ 23 |
540 |
265 |
190 |
| 350 |
14 |
787 |
460 |
460 |
428 |
4 |
30 |
16- φ 23 |
585 |
300 |
225 |
| 400 |
16 |
914 |
515 |
515 |
482 |
4 |
32 |
16- φ 25 |
635 |
360 |
254 |
| 450 |
18 |
978 |
565 |
565 |
532 |
4 |
32 |
20- φ 25 |
680 |
385 |
285 |
| 500 |
20 |
978 |
620 |
620 |
585 |
4 |
34 |
20- φ 25 |
740 |
415 |
333 |
| PN 1.6MPa |
| 15 |
1/2 |
130 |
95 |
65 |
45 |
2 |
14 |
4- φ 14 |
110 |
55 |
6 |
| 20 |
3/4 |
150 |
105 |
75 |
55 |
2 |
16 |
4- φ 14 |
120 |
58 |
7.8 |
| 25 |
1 |
160 |
115 |
85 |
65 |
2 |
16 |
4- φ 14 |
135 |
60 |
10 |
| 32 |
11/4 |
180 |
135 |
100 |
78 |
2 |
18 |
4- φ 18 |
150 |
75 |
12.5 |
| 40 |
11/2 |
200 |
145 |
110 |
85 |
3 |
18 |
4- φ 18 |
165 |
82 |
14.5 |
| 50 |
2 |
230 |
160 |
125 |
100 |
3 |
20 |
4- φ 18 |
185 |
95 |
19.5 |
| 65 |
21/2 |
290 |
180 |
145 |
120 |
3 |
20 |
4- φ 18 |
210 |
105 |
25.5 |
| 80 |
3 |
310 |
195 |
160 |
135 |
3 |
22 |
4- φ 18 |
235 |
120 |
30 |
| 100 |
4 |
350 |
215 |
180 |
155 |
3 |
24 |
8- φ 18 |
260 |
135 |
36 |
| 125 |
5 |
400 |
245 |
210 |
185 |
3 |
26 |
8- φ 18 |
310 |
158 |
62 |
| 150 |
6 |
480 |
280 |
240 |
210 |
3 |
28 |
8- φ 23 |
350 |
180 |
78 |
| 200 |
8 |
495 |
335 |
295 |
265 |
3 |
30 |
12- φ 23 |
420 |
215 |
156 |
| 250 |
10 |
622 |
405 |
355 |
320 |
3 |
32 |
12- φ 25 |
505 |
240 |
172 |
| 300 |
12 |
698 |
460 |
410 |
375 |
4 |
34 |
12- φ 25 |
560 |
265 |
240 |
| 350 |
14 |
787 |
520 |
470 |
435 |
4 |
38 |
16- φ 25 |
605 |
300 |
208 |
| 400 |
16 |
914 |
580 |
525 |
485 |
4 |
40 |
16- φ 30 |
650 |
350 |
265 |
訂貨須知:
一、①襯氟旋啟式止回閥產品名稱與型號②襯氟旋啟式止回閥口徑③襯氟旋啟式止回閥是否帶附件以便我們的為您正確選型。
二、若已經由設計單位選定正鋼閥門襯氟旋啟式止回閥型號,請按襯氟旋啟式止回閥型號直接向我司銷售部訂購。
三、當使用的場合非常重要或環境比較復雜時,請您盡量提供設計圖紙和詳細參數,由我們的正鋼閥門專家為您審核把關。