【高壓角式截止閥概述】
用于公稱壓力PN1.6~32.0MPa,工作溫度-29~540℃的石油、化工、制藥、化肥、電力行業等各種工況的管路上,切斷或接通管路介質。高壓角式截止閥的主要特點: 產品結構合理、密封可靠、性能優良、造型美觀;密封面堆焊Co基硬質合金、耐磨、抗摩擦性能好、使用壽命長; 閥桿調質及表面氮化處理,有良好的抗腐和抗摩擦性能;雙重密封,性能更可靠;閥桿升降位置指示,更直觀;零件材質及法蘭、對焊端尺寸可根據實際工況或用戶要求合理選配,滿足各種工程需要。
【高壓角式截止閥產品執行標準】
設計與制造:GB12233
法蘭尺寸:GB9113
結構長度:GB12221
檢驗與實驗:GB/T13927
【高壓角式截止閥性能規范】
|
公稱壓力 |
16 |
32 |
Mpa |
|
殼體試驗 |
24 |
48 |
|
密封試驗 |
17.6 |
35.2 |
|
氣密封試驗 |
0.5-0.7 |
|
適用介質 |
C |
P |
R |
|
水、油品、蒸汽 |
氮氫混合氣 |
堿液、液氨 |
|
適用溫度(℃) |
≤200 |
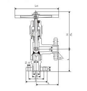
【高壓角式截止閥結構圖】


【高壓角式截止閥主要連接尺寸】
|
型 號 |
通徑 DN(mm) |
主要連接尺寸 |
外形尺寸 |
|
L |
D |
D 1 |
M |
D 2 |
b |
Z-фd |
L O |
H |
H 1 |
|
AJ44H-320 AL44H-320 |
3 |
60 |
70 |
42 |
M14×1.5 |
10 |
15 |
3-16 |
100 |
71 |
77 |
|
6 |
60 |
70 |
42 |
M14×1.5 |
10 |
15 |
3-16 |
150 |
80 |
94 |
|
J44Y-160 L44Y-160 |
10 |
90 |
95 |
60 |
M24×2 |
10 |
20 |
3-18 |
200 |
260 |
275 |
|
15 |
105 |
95 |
60 |
M24×2 |
16 |
20 |
3-18 |
200 |
268 |
288 |
|
J44Y-320 L44Y-320 |
10 |
90 |
95 |
60 |
M24×2 |
10 |
20 |
3-18 |
200 |
268 |
275 |
|
15 |
105 |
105 |
68 |
M33×2 |
17 |
20 |
3-18 |
200 |
268 |
288 |
|
J44Y-160 L44Y-160 |
25 |
120 |
102 |
68 |
M33×2 |
28 |
20 |
3-18 |
300 |
225 |
245 |
|
32 |
135 |
115 |
80 |
M42×2 |
37 |
22 |
4-18 |
300 |
222 |
248 |
|
40 |
165 |
165 |
115 |
M52×2 |
47 |
28 |
6-26 |
350 |
265 |
300 |
|
50 |
190 |
165 |
115 |
M64×3 |
59 |
32 |
6-26 |
400 |
303 |
345 |
|
J44Y-320 L44Y-320 |
25 |
120 |
115 |
80 |
M42×2 |
35 |
22 |
4-18 |
300 |
225 |
245 |
|
32 |
135 |
135 |
95 |
M48×2 |
41 |
25 |
4-22 |
300 |
222 |
248 |
|
40 |
165 |
165 |
115 |
M64×3 |
58 |
32 |
6-26 |
350 |
265 |
300 |
|
50 |
190 |
200 |
145 |
M80×3 |
70 |
40 |
6-29 |
400 |
303 |
345 |
|
GJ44H-160 GL44H-160 |
65 |
215 |
200 |
145 |
M80×3 |
73 |
40 |
6-29 |
710 |
430 |
490 |
|
80 |
260 |
225 |
170 |
M100×3 |
93 |
50 |
6-33 |
810 |
520 |
600 |
|
100 |
290 |
260 |
195 |
M125×4 |
115 |
60 |
6-36 |
850 |
595 |
685 |
|
GJ44H-320 GHJ44H-320 |
65 |
215 |
225 |
170 |
M100×3 |
90 |
50 |
6-33 |
710 |
430 |
490 |
|
80 |
260 |
260 |
195 |
M125×4 |
112 |
60 |
6-36 |
810 |
520 |
600 |
|
100 |
290 |
300 |
235 |
M155×4 |
130 |
75 |
8-39 |
850 |
595 |
285 |
【高壓角式截止閥安裝注意事項】
1)、安裝位置、高度、進出口方向必須符合設計要求,連接應牢固緊密。
2)、安裝在保溫管道上的各類手動閥門,手柄均不得向下。
3)、閥門安裝前必須進行外觀檢查,閥門的銘牌應符合現行國家標準《通用閥門標志》GB 12220的規定。對于工作壓力大于1.0 MPa 及在主干管上起到切斷作用的閥門,安裝前應進行強度和嚴密性能試驗,合格后方準使用。強度試驗時,試驗壓力為公稱壓力的1.5倍,持續時間不少于5min,閥門殼體、填料應無滲漏為合格。嚴密性試驗時,試驗壓力為公稱壓力的1.1倍;試驗壓力在試驗持續的時間應符合GB標準要求,以閥瓣密封面無滲漏為合格。
訂貨須知:
一、①高壓角式截止閥產品名稱與型號②高壓角式截止閥口徑③高壓角式截止閥是否帶附件以便我們的為您正確選型。
二、若已經由設計單位選定正鋼閥門高壓角式截止閥型號,請按高壓角式截止閥型號直接向我司銷售部訂購。
三、當使用的場合非常重要或環境比較復雜時,請您盡量提供設計圖紙和詳細參數,由我們的正鋼閥門專家為您審核把關。